misha@motor-reduktor.com.ua

Линейный сервопривод Stober Antriebstechnik с зубчатой рейкой. Предназначен для линейного перемещения суппортов и кареток станков, шиберов и люков.

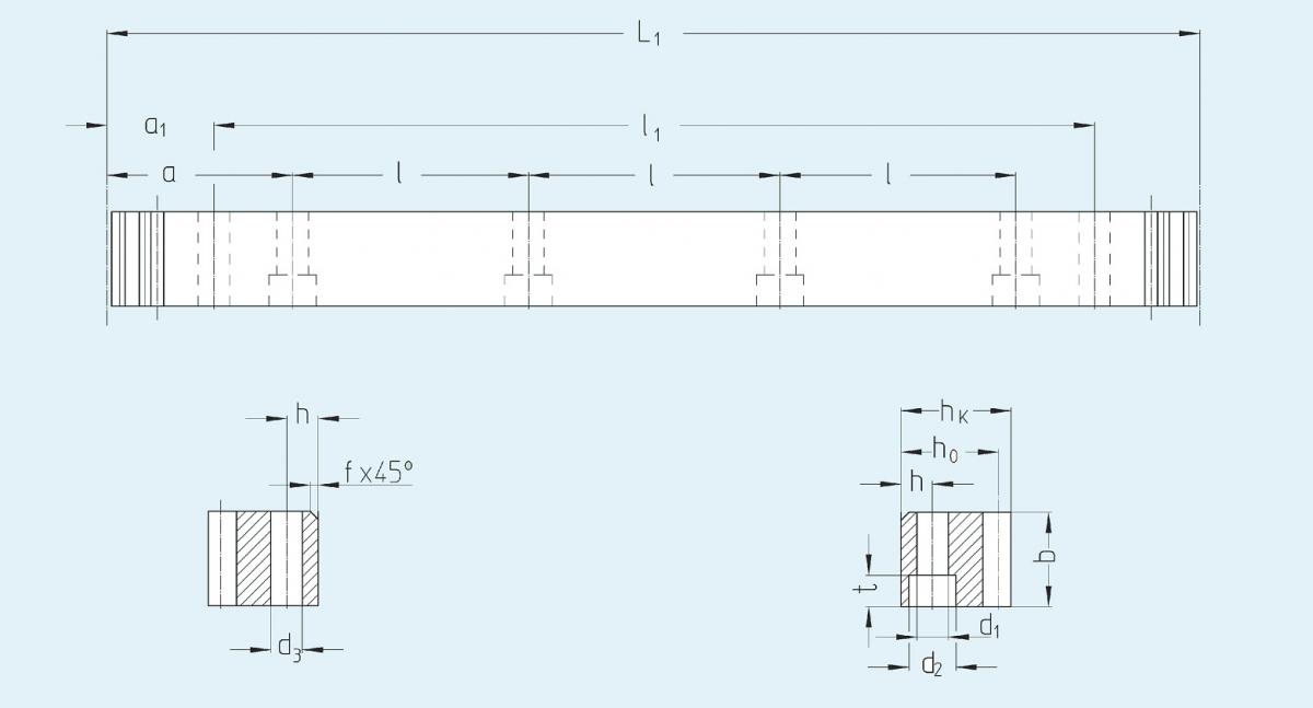
Прямозумая зубчатая рейка. Закалённая, шлифованная.

Косозубая зубчатая рейка. Термообработанная, шлифованная.

Конструкция проивода Stober жёсткая и сбалансированная. Выходной вал редуктора с косозубой шестерней имеет дополнительную подшипниковую опору. Косозубая рейка изготовлена из высококачественной стали, имеет закалённый и шлифованный зуб с достаточным коэффициентом перекрытия, обеспечивающим плавный ход. Модуль зубчатой рейки от 1 до 12. По спецзаказу возможны практически любые конструкции.

Производство немецкой компании Stober. Выское качество, точность и износоустойчивость. Заменим редукторы Redex Andantex, Nexen, Arrow, Boston, Cross + Morse, Sati, Sedis, Tandler, Wittenstein, WMH Herion, Huco, Browning, Chiaravalli, Mijno, Engranajes Masia. Механизм может быть использован как актуатор. Для производства механизма линейного перемещения с жёсткой фиксацией готовы рекомендовать винтовые пары Benzlers BD. Для построенее более простых механизмов вы можете купить прямозубые зубчатые рейки Sati spa, прямозубые шестерни, бесшпоночные муфты, рулонные зубчатые ремни, зубчатые шкивы, трапециевидные ходовые винты и ШВП.
Павинов Михаил
инженер
(098) 083-58-09
misha@motor-reduktor.com.ua
| Каталог ZTSS Stober реечно-зубчатый линейный привод | Рейки и сервопривод Stober Antriebstechnik ZTRS ![]() | |